top of page

THE ORCHID
EJE Architecture, 2019
Address: 213 Princess Highway, Arncliffe, NSW, 2205
Type: Residential
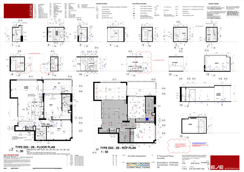
Background: This project had already been active for a number of years before I started work on it, and while there was little design work to be done, as a design and construct project, there was a constant stream of revisions to supply.
Supplied here is a partial set of documentation for building D of the project, where the vast majority of the of the fitouts, dimensions and annotations, of the internal elevations is my work.
The Orchid: Bio
The Orchid: Gallery
bottom of page












